フォレストコート追分上の原B
成約済み 1238*当社売主物件*
遠くの山々を望む開放感ある南西向き2階リビング
3LDK新築建売別荘
勾配天井で開放感のある2階のリビングダイニング(薪ストーブあり)
大きい窓から、明るい陽ざしが入ります
あたたかな薪ストーブ
実用性のあるカウンターキッチン
1F6.7帖の洋室
1F10帖の洋室(W・I・C付)
1F洋室のウォークインクローゼットは収納力あります
階段
1F洗面(2Fにも洗面があります)
2F浴室
トイレ(1Fと2Fにあります)
※図面と現況が異なる場合は、現況優先と致します。
| 所在地 | 長野県北佐久郡軽井沢町大字追分字上の原 |
| 価 格 | 成約済み |
| 交 通 | しなの鉄道 信濃追分駅 約3.5km 追分宿入口 約950m スーパーツルヤ 約1.5km |
| 地 積 | 369㎡ |
| 用途地域 | 第一種住居地域 |
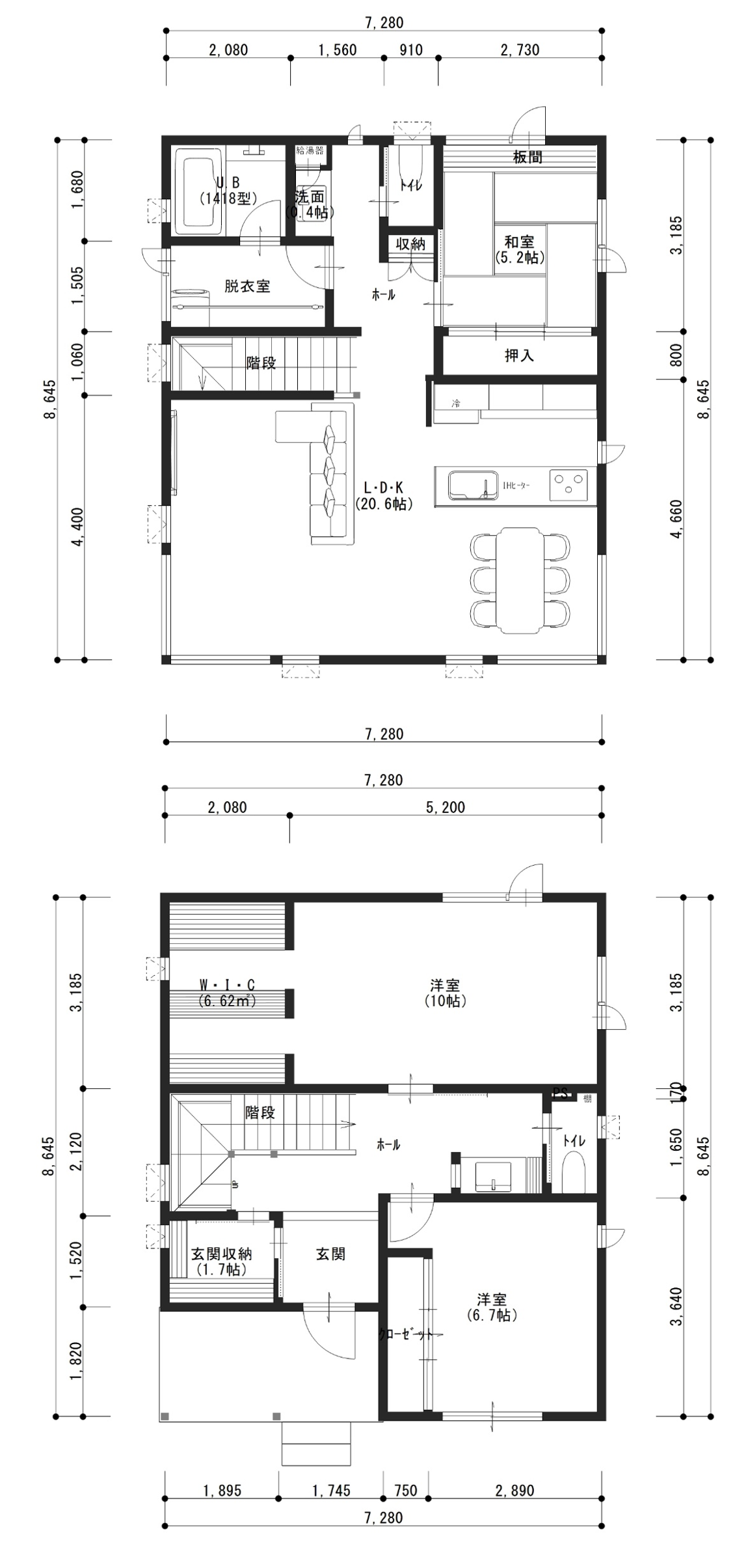
| 建 物 | 1階 56.31㎡ 2階 62.93㎡ 延床面積 119.24㎡ |
| 構 造 | 木造ガルバリウム鋼板葺2階建て |
| 築年月 | 令和7年10月下旬完成予定 |
| 間取り | 3LDK |
| 建/容 | 建ぺい率 60% 容積率 160% |
| 道 路 | 西側 幅員約4.2m 公道 |
| 水道/排水 | 公営水道/合併浄化槽 |
| 取引態様 | 売主 |
| 備 考 | *軽井沢町自然保護対策要綱に基づく指導有り *長野県景観形成条例に基づく制限有り *建築確認番号:6佐建第601-050号 *エアコン・床下放熱器4台 |
― 担当者からのコメント ―
軽井沢の自然と調和する、開放感あふれる新築3LDK別荘。
南西の大きな窓からは、遠くに望む山々が春夏秋冬それぞれの表情を見せてくれます。
陽光がたっぷり注ぐリビングで、朝の目覚めや夕暮れのくつろぎを心豊かに過ごしてみてはいかがですか。
使い勝手の良い収納スペースが確保され、快適な暮らしを支えます。
国道18号からもほど近く、週末のリトリートにも、二拠点生活にも最適な一棟です。




