フォレストコートこもれびの里新築別荘
成約済み 1234*当社売主物件*
浅間山を望む解放感ある立地。信濃追分駅より徒歩11分
追分駅より約850m、こもれびの里近隣の新築建売別荘
ダイニング デッキ越しの景色は解放感あります。
リビング 大きな窓は明るい陽が差し込みます。
キッチン 収納力あるキャビネット付です。
東側のリビング吹き抜け
西側のリビング吹き抜け
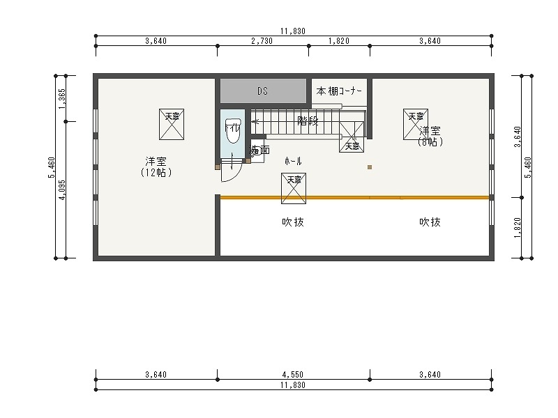
2階東側のフリースペース。抜け感ある景色です。
西側の洋室スペース
バスルーム
洗面化粧台
南全面にデッキがあります。
玄関ホール
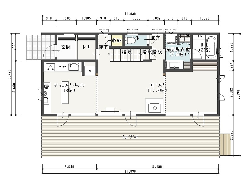
※図面と現況が異なる場合は、現況優先と致します。
| 所在地 | 長野県北佐久郡軽井沢町大字長倉字 |
| 価 格 | 成約済み |
| 交 通 | しなの鉄道 信濃追分駅より約850m |
| 地 積 | 423㎡ |
| 用途地域 | 無指定地域 |
| 建 物 | 1階:62.93㎡ 2階:47.20㎡ 延床面積:110.13㎡ |
| 構 造 | 木造合金メッキ葺き2階建て |
| 築年月 | 令和6年4月完成 |
| 間取り | 1LDK+フリースペース |
| 建/容 | 30%/50% |
| 道 路 | 西側 幅員約13.4m 公道 |
| 水道/排水 | 公営水道/合併浄化槽 |
| 取引態様 | 売主 |
| 備 考 | *軽井沢町自然保護対策要綱に基づく指導有り *長野県景観形成条例に基づく制限有り *建築確認番号:4佐健第402-034号 |
― 担当者からのコメント ―
『木もれ陽の里』近隣の浅間山を望む明るい平坦地。追分駅より徒歩11分。
家族構成に対応できる可変性ある間取で、快適に過ごせます。




