フォレストコート浅間台B 新築建売別荘
成約済み 1237
外観 リビングダイニングの前にはデッキがあり、芝庭におりることができます。
リビングルーム 吹抜で高窓から明るい陽射し入ります
リビングに薪ストーブがあります。
玄関ホールからリビングに入ると階段があり、抜け感あり
リビングから見る階段と2階廊下
キッチン 収納量あります。
キッチンの奥にダイニングがあります。
1階の寝室。2方向に窓があり、お隣のお庭借景
1階洗面室。ゆったりとした広さ。奥に脱衣室があります
バスルーム 1.25坪
1階のトイレ
二階 吹き抜け脇の廊下
2階ファミリールーム 個室2部屋にもアレンジ可能
2階北側のお部屋
2階洗面
2階トイレ
1階トイレ脇の収納
2階廊下より吹き抜け越しに見える景色
リビング前のデッキからお庭に向けて
2階ファミリールームから見る東側景色
駐車スペースは3台分確保
芝庭全景
ダイニングからもデッキに出られます。
デッキは屋根付きなので、雨の日でも楽しめます
※図面と現況が異なる場合は、現況優先と致します。
| 所在地 | 北佐久郡軽井沢町大字長倉字 |
| 価 格 | 成約済み |
| 交 通 | しなの鉄道 信濃追分駅より約1.7km |
| 地 積 | 519㎡ |
| 用途地域 | 第一種住居地域 |
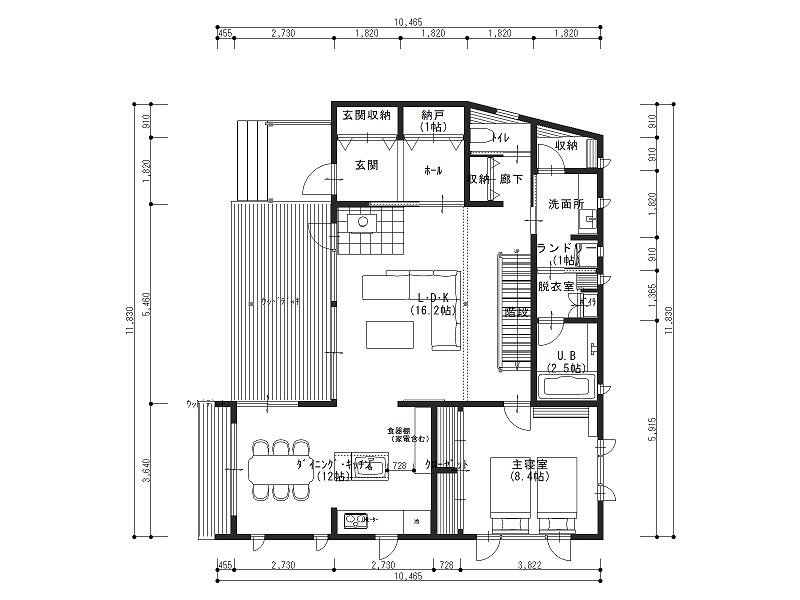
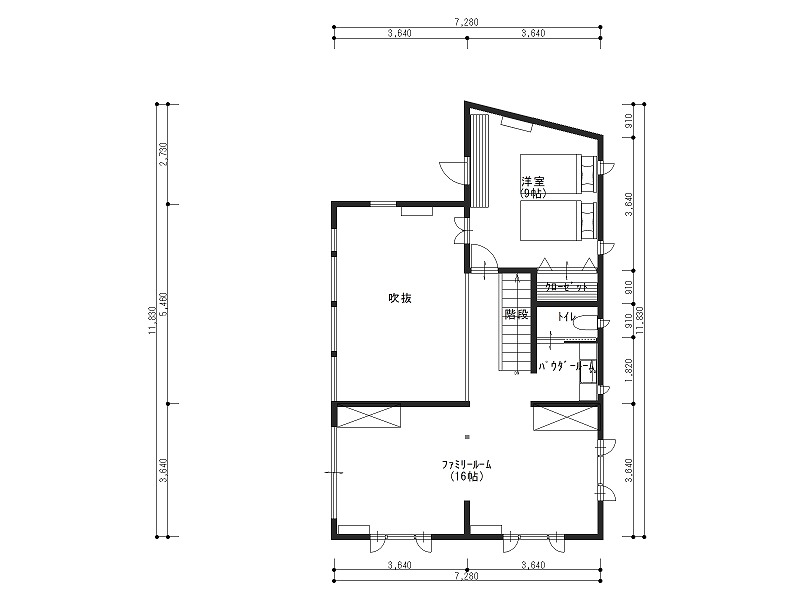
| 建 物 | 1階:98.33㎡ 2階:54.65㎡ 延床面積:152.98㎡ |
| 構 造 | 木造合金メッキ葺き2階建て |
| 築年月 | 令和6年7月完成予定 |
| 間取り | 2LDK+ファミリールーム |
| 建/容 | 建ぺい率 60% 容積率 160% |
| 道 路 | 南西側 幅員約3.8m 公道 |
| 水道/排水 | 公営水道/合併浄化槽 |
| 取引態様 | 売主 |
| 備 考 | *軽井沢町自然保護対策要綱に基づく指導有り *長野県景観形成条例に基づく制限有り *上記土地面積にセットバック部分約5.45㎡含みます。 *暖房:床暖房(1階)・エアコン(リビング・各部屋)・薪ストーブ *建築確認番号:5佐健第501-016号 令和5年5月10日 |
1000m林道と国道18号間の人気エリアに新築建売別荘が完成しました。
1階にはLDKと主寝室、洗面・バスルーム・トイレ、2階には1部屋とファミリースペース、洗面&トイレがあり、大家族や来客が多い方にもお奨めです。
リビングダイニングの前には屋根付きのウッドデッキがあり、その先には芝庭が設けてありますので、すぐにお庭で遊ぶことができます。
近隣には人気のパン屋さんやコーヒー屋さんもあり、お散歩で気軽に訪れることができるので、色々なお店に出かけてください。
追分駅まで約1.7km、西部小学校まで約1km、セブンイレブン借宿店まで約700m、スーパーツルヤ軽井沢店まで約3.7km。
定住はもちろん、別荘としても利便性よくお使いいただけると思います。
是非、内見にお出かけください。




