フォレストコート千ヶ滝西区あやめケ原 新築建売別荘
成約済み 1233*当社売主物件*
緑の自然に溶け込み、静かにゆっくりと過ごせる平屋建て新築別荘
道路からの建物。南西向きの陽当り良い立地です。
リビングダイニング 解放感ある室内です。
キッチン側からみるリビング 薪ストーブあり
対面式キッチン シンク下にゴミスペースあり。
ダイニング脇から出られる大型デッキ。
主寝室
洋室
バスルームからも景色が望めます。
洗面とトイレ 玄関脇と主寝室脇それぞれにあります。
玄関脇収納。
北西側からみる建物全景
南西側の芝庭
※図面と現況が異なる場合は、現況優先と致します。
| 所在地 | 長野県北佐久郡軽井沢町大字長倉字小谷ヶ沢 |
| 価 格 | 成約済み |
| 交 通 | しなの鉄道 中軽井沢駅から 約4.1km |
| 地 積 | 996㎡ |
| 用途地域 | 第一種低層住居専用地域 |
| 建 物 | 182.16㎡ |
| 構 造 | 木造合金メッキ鋼板ぶき平家建て |
| 築年月 | 令和6年3月完成予定 |
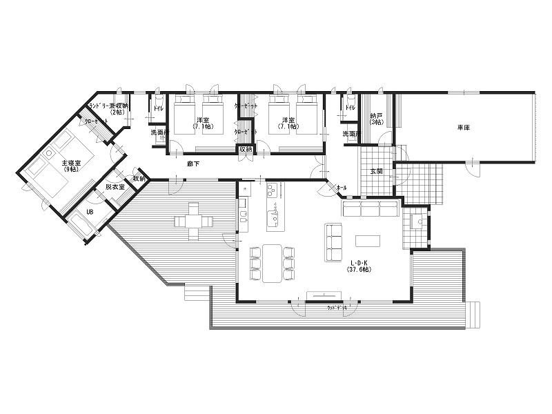
| 間取り | 3LDK+玄関収納+ランドリールーム+車庫 |
| 建/容 | 20%・20% |
| 道 路 | 東南側 幅員約5.6m 私道 |
| 水道/排水 | 私営水道/合併浄化槽 |
| 取引態様 | 売主 |
| 備 考 | *軽井沢町自然保護対策要綱に基づく指導有り *長野県景観形成条例に基づく制限有り *建築確認番号:3佐建第301-039号 令和3年5月31日 *上記面積にガレージ部分26.49㎡含まれます。 |
― 担当者からのコメント ―
冬は北西側に浅間山を望む、南西向き新築平家別荘。3LDKのゆったりした間取りで陽当たりも良く、定住&別荘どちらもお奨めです。
ダイニング脇にはBBQや朝食も楽しめる大型ウッドデッキがあり、自然を存分に感じることができます。
LDK及び各室、洗面脱衣、トイレに床暖房。各部屋エアコン付き。
夏は緑いっぱいの木々に囲まれて、自然豊かな立地です。千ヶ滝あやめケ原バス停より約300m(徒歩約4分)。
1000林道より追分駅方面へのアクセス良く、一年中快適に過ごせます。




