中軽井沢柳宿 中古戸建
成約済み 1227緑に囲まれた静かな立地。隠れ家的に利用できます。
木々に囲まれた建物です。
対面キッチン。
広めなバスルームです。
洗面脱衣室
1階トイレ。2階にもトイレあります。
リビング脇の和室
リビングからキッチン方向
ロフトは広々としており、複数人の宿泊が可能です。
ロフトからのリビングダイニング
2階ロフトは解放感があります。
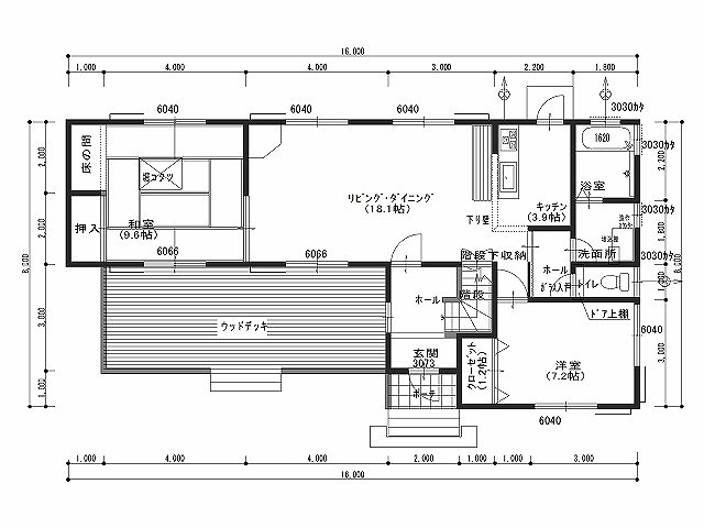
※図面と現況が異なる場合は、現況優先と致します。
| 所在地 | 北佐久郡軽井沢町大字長倉字柳宿 |
| 価 格 | 成約済み |
| 交 通 | しなの鉄道 中軽井沢駅より 約2.5km |
| 地 積 | 1000.69㎡ |
| 用途地域 | 第一種低層住居専用地域 |
| 建 物 | 118㎡ |
| 構 造 | 木造 |
| 築年月 | 平成12年12月 |
| 間取り | 2LDK+ロフト |
| 建/容 | 20%・20% |
| 道 路 | 東南側幅員約3.4~3.8m 公道 |
| 水道/排水 | 公営水道/合併浄化槽 |
| 取引態様 | 専任 |
| 備 考 | *軽井沢町自然保護対策要綱に基づく指導有り *長野県景観形成条例に基づく制限有り *床暖房:LDK、1階洋室、2階フリースペース。 *その他暖房:薪ストーブ、堀こたつ(和室) *給湯器:新品交換済(2023.9月) *ウッドデッキ造り替え済(2023.9月) *引渡時期:相談 |
― 担当者からのコメント ―
柳宿別荘地内の森の中の別荘。町道より1区画奥の土地につき、静かにお過ごしいただけます。
敷地は南側に広くお庭が取れており、駐車スペースより少し高い位置に建物が建てられているため、南側の隣接建物も気になりません。
ウッドデッキは補修が必要だったため、新設しております。
静かにゆっくりと過ごされたい方にお奨めな建物です。




